Floor Plan Porn: River House Duplex
LOCATION: NewYork City, NY
PRICE: $25,500,000
SIZE: 7,000 (or so) square feet, 3-5 bedrooms, 6.5 bathrooms (plus a three bedroom and two-ish bathroom staff wing)
YOUR MAMAS NOTES: Your Mama has loads of celebrity real estate dish waiting in the wings but we thought it might be fun to switch gears this morning and dive into some good ol' fashioned floor plan porn in the form of a heavy duty high floor duplex at the once high and mighty but currently less coveted River House building in New York City that—we learned via our unofficial aide de camp Hot Chocolate—unexpectedly popped up on the open market yesterday with an asking price of $25,500,000.
The hulky and bulky building—a dignified if dour Art Deco pile built in the early 1930s and once the very quintessence of real estate snootiness in Manhattan—has fallen on less glorious times and lower sale prices over the last few decades. According to New York City-based real estate writer Michael Gross in a recent column for Avenue magazine, that's partly due to its often difficult and somewhat isolated location. Although it's hardly Timbuktu, River House stands several long blocks too far east of Midtown to be considered convenient by many of today's more high-nosed types and the building backs up to the murky East River, directly on top of the loud and filthy six-land F.D.R. Drive. The nearest shopping and dining drag is a rather lackluster stretch of First Avenue, hardly a big draw for folks who can afford to drop $400 on a plain white t-shirt at Bergdorfs and eat at Per Se every night of the week.
Another reason the otherwise baronial building has fallen out of favor with the Manhattan's newer moneyed elite, according to Mister Gross, is the negative perception many have of the (in)famously persnickety board that can capriciously determine who passes muster as a potential resident and who does not. Over the years the powerful board is rumored to poo-poo just about anybody showy or Showbizzy including Diane Keaton and Gloria Vanderbilt who sued over her River House rejection alleging it was because she dated black men. She eventually backed down from the legal imbroglio after the board let it slip it was her shaky balance sheet and not her—ahem—jungle fever that barred entré into what was then one of the most aristocratic, expensive and prestigious apartment houses in the world.
So the possibly untrue rumors go, after notoriously tightly wound Tinseltowner Joan Crawford was rejected by the River House board she engineered the installation of the gigantic, glaring and scenery chewing Pepsi-Cola sign located directly across the river from River House. At the time, Miz Crawford was married to Pepsi-Cola CEO Alfred Nu Steele and the River House board president was (former) Coca-Cola CEO Robert Woodruff. We don't know if the story is true—we can only hope it is because it's such a delicious tale—but y'all can see how it took root and blossomed in the fascinating lexicon of New York's high-brow real estate rumor mill.
The board famously nixed the application of disgraced president Richard Nixon in the dark days following his landmark resignation but did, however, give a pass to highly controversial statesman Henry Kissinger who has shacked up in River House for-evuh.
In addition to Mister Kissinger and a slew of well-to-do attorneys and financial industry fat cats, our entirely unscientific research shows that some of the other plutocratic residents of River House include Dutch West India Company scion Kiliaen Van Rensselaer; Georgia-Pacific paper heiress Celeste Cheatham O'Neil; Ellen Meckler, the wealthy widow of beauty salon tycoon Nathan Finkelstein; and financier Sir Evelyn Robert de Rothschild of the extremely influential and powerful Rothschild banking dynasty.
Also living up at River House are Rosalind P. Walter, the well-born gal who inspired the term "Rosie the Riveter" during World War II; William McCormick Blair, Jr.—the former abassador to both Denmark and the Philippines—and his stylish, helmet haired socialite/philanthropist wife Catherine "Deeda" Blair; and, finally, Arlene Farkas, the ex-wife of bigamist real estate heir Bruce Farkas whose double-life was exposed after he stupidly sent children from both his concurrent marriages to the same swank private school.
Anyhoodles poodles, according to Michael Gross, the seller of the apartment are the executors of the estate of the very recently deceased Betty Evans, the educated, cultured and socially registered ex-wife of Dr. William "Farny" Farnswoth Loomis and the third wife and widow of the hard charging corporate raider Thomas Mellon Evans.
With its $25,500,000 price tag, Miz Evans' posh pied-a-terre duplex is by far the priciest apartment currently on the open market at River House* and, according to listing details, the monthly maintenance comes in at $16,473, a figure that adds up to a $197,676 per year.
The precise square footage isn't recorded on listing details but a couple of quick and rudimentary tabulations on Your Mama's bejeweled abacus puts it at around 7,000. That's tiny compared to some of the behemoth mega-mansion in Beverly Park but, as Manhattanites know, for NewYork City it's remarkably and unusually large.
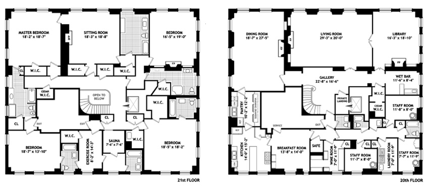
A careful perusal of the floor plan and Your Mama counted 16 (or so) rooms, five fireplaces (one decorative), 20 closets (half of them walk-ins) and 53 windows with a very rare quadruple exposure. Listing details show the decidedly patrician spread has five bedrooms and six full and five half bathrooms. However, a careful perusal of the floor plan included with online marketing materials (above) and Your Mama came up with slightly more nuanced figures. More on that in a minute.
The public spaces are sumptuously scaled and include an ample and impressive entrance gallery with a wacky, faux-stone wall treatment and inset black and beige marble floors, a baronial formal living room that stretches nearly 30 feet long with direct river views and a 27+ foot long formal dining room furnished with a high-gloss Chippendale table as long as a damn runway at Lincoln Center Fashion Week. This sort of prim and traditional day-core where the shimmering taffeta drapery is laden with all manner of fringe and pasamenterie is hardly Your Mama's cup of decorative tea but we'll take that super-fab, egg-shaped chandelier in the dining room, thank you very much.
Double doors in the formal living room open to a more contemporary and casual—but still quite staid—corner library/den all done up and did over, according to listing details, by famed decorator Billy Baldwin. There's also, Your Mama noted with envy, a wet bar tucked up behind the library. We are not talking, children, about a wet bar hidden behind a cabinet faced with vintage verre églomisé, we're talking about an entire room with a southern city view window that's solely devoted to the storage, mixing and imbibing of booze. Heaven.
A big butler's pantry joins the dining room to the only slightly larger main kitchen as well as the breakfast room, service area(s) and staff wing. Just off the breakfast room there's a walk-in safe for silver storage and a temperature controlled wine room with extra space for—you got it—storing fur coats. Beyond the wine room there's an extensive staff wing with laundry room, three punishingly small bedrooms. Each of the staff bedrooms appears to have a sink and share two separate cubicles with toilets and tub/showers.
Up the curving, Scarlet O'Hara worthy staircase there are two corner guest/family bedroom suites, each with windowed bathroom and a walk-in closet. There's also a multi-room exercise suite equipped with a sauna almost as large as the three cell-sized staff bedrooms downstairs and could easily be converted to a third guest/family bedroom as is has with walk-in closet and attached private bathroom.
The master suite occupies the northeast and northwest corners of the upper floor and is probably bigger than Your Mama and The Doctor Cooter's entire house. The suite encompasses a private sitting room with fireplace, a corner bedroom, two large and windowed bathrooms and at least four walk-in closets. A large room in the northwest corner could be converted to a fourth guest/family bedroom with private bathroom but in its current configuration, according to the floor plan, it's only accessible through either one of the master bathrooms or through a bathroom that opens off the exercise room.
In addition to her vast duplex in Manhattan Miz Evans maintained substantial homes in the hoity-toity enclaves of Greenwich (CT) and East Hampton (NY). We're not sure if she retained any ownership but once upon a time Mister and Missus Evans owned Buckland Farms, a notable thoroughbred breeding and training facility in Northern Virginia.
*The children will note that the fine folks at StreetEasy show there are nine other apartments currently on the open market at River House that range in price from $3.5 million for a six room two bedroom spread to $12.2 million for a 2 bedroom and 3.5 bathroom triplex penthouse with two roomy roof terraces. Also of note, as far as Your Mama knows, the most paid for an apartment at River House since mid-2004 was the $11,650,000 that Chilean-born investment manager Manual Balbontin paid in February 2011 for the sprawling, 14-room ground floor duplex of (now deceased) Broadway producer Marty Richards.
listing photos and floor plan: Brown Harris Stevens




0 comments
Post a Comment